Farm Cottage 1
Newly refurbished in Spring 2025, Farm Cottage 1 is a beautifully upgraded three-bedroom retreat, thoughtfully designed for multi-generational family holidays. Set just outside the main village in front of the Home Farm, this traditional stone-built cottage offers stunning views and a peaceful countryside setting, just 50 yards from the River Oude. With its fresh new interiors, luxurious touches, and ample space for everyone, this is the perfect destination for quality time together in the Scottish Highlands.
The heart of the home is the brand-new, spacious kitchen—designed for gathering, cooking, and catching up over family meals. Fully equipped with modern appliances, including a coffee machine, oven, hob, fridge, and dishwasher, it offers everything needed for relaxed self-catering holidays. The adjoining dining area provides plenty of room for shared meals, ensuring that food and conversation flow effortlessly.
The spacious sitting room is an inviting place to unwind, with a cosy new wood-burning stove, plush seating, and a flat-screen Smart TV and full fibre WiFi. A charming window seat overlooks the ever-changing landscape, making it the perfect spot to curl up with a book or simply take in the views. The accommodation includes a luxurious double bedroom and two comfortable twin bedrooms, ensuring ample space for all generations. A family bathroom with a bath and over-bath shower, along with a separate shower room, provides extra convenience.
Outside, the large shared garden offers a peaceful setting to enjoy the fresh Highland air, now featuring upgraded outdoor seating for al fresco dining or quiet moments in nature. Onsite parking ensures easy access, and well-behaved pets are welcome, making this a truly inclusive retreat for the whole family. Whether you’re exploring the breathtaking Argyll countryside or simply relaxing in this beautifully refurbished home, Farm Cottage 1 is the perfect base for an unforgettable family holiday.
What you've said...
Check Availability & Book
Please note that our rental prices include a charge for electricity usage throughout your stay.
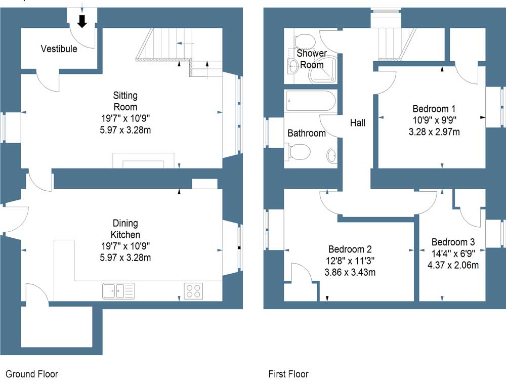
Floor Plan
Cottage Inventory
Our cottages are all equipped with everything you will need for a wonderful holiday. To view the cottage inventory, click the button below.
Cottage Features
Semi-detached Farm Cottage
Two storey stone cottage with plenty of space for everyone
3 Bedrooms
1 Double & 2 Twin Rooms
Wifi & Internet
Free fibre WiFi
Sleeps up to 8
In three bedrooms & double sofa bed
Spacious Living Room
With double sofa bed & window seat
Wood-burning Stove
For cosy fireside moments
Smart TV with Freeview
Flat screen Smart TV
Bathroom
with bath, over-bath shower, WC & wash-hand basin
Shower Room
With walk-in shower, WC & hand basin
Kitchen
Well-equipped kitchen with Coffee Maker
Parking
Parking at the property
Large Shared Garden
With fantasic views down to Loch Melfort
Towels & Bed Linen
Towels & bed linen are provided
Pets Welcome
Up to 2 pets are welcome
American Fridge/Freezer
With plenty room for all your goodies
Newly refurbished in Spring 2025, Farm Cottage 1 is a luxury retreat, featuring a spacious kitchen, wood-burning stove, window seat, and large shared garden – perfect for multi-generational family holidays in Scotland…















